Concentra-se em projetos profissionais de salas limpas e equipamentos farmacêuticos para salas limpas.
indústria: Projeto de Sala Limpa
Localização: Rússia
Ano de execução: 2020
Nossa sala limpa modular farmacêutica se dedica principalmente a oferecer serviços completos para engenharia de sistemas de sala limpa, incluindo fabricação de produtos, transporte de equipamentos, controle de construção, testes de aceitação de engenharia, etc.
Também poderíamos fornecer o serviço de pesquisa de campo de design e pessoal. Abaixo está um caso que fizemos para um cliente da Rússia.
Abaixo está um caso da Rússia e, em primeiro lugar, recebemos a consulta de Katyusha, ela trabalha para uma empresa farmacêutica como gerente de compras, ela quer que forneçamos um projeto de cerca de 300㎡ para produção de band-aid. podemos calcular conforme a condição de realidade da construção da fábrica. Assim, podemos evitar mais problemas e erros na cotação e no cálculo do custo total.
E ela nos enviou um design muito simples e um requisito básico, mencionou que o projeto está em ISO 8,2,6 metros de altura. A temperatura é de 22-25 ℃. sala de aula limpa inferior. E na área de produção, ela precisa de luz ultravioleta para esterilização. Todas as peças elétricas e sistema de abastecimento de água, sistema de ventilação e rota de resíduos precisam ser fornecidos por nós.

Pela foto podemos entender esta área de produção, ao redor das máquinas também deve haver espaço suficiente para a atividade dos trabalhadores, e também precisa de reserva de espaço suficiente para estocar o material de embalagem e produtos inacabados
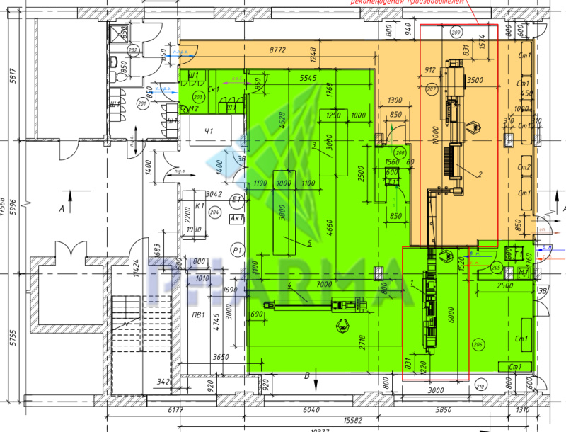
Posteriormente também confirmamos o layout de água, layout de gás, layout de circuito, layout de fluxo de trabalho, e também confirmamos as novas salas de eventos e novos tamanhos, no período de cotação, é muito importante para nós e para os clientes confirmar o layout. , é melhor não mudar, porque apenas uma pequena diferença também causará muitos problemas para todo o sistema.
Então no final tivemos um design final com detalhes suficientes.
E para os painéis eles também exigiram que pré-processássemos em nossa fábrica, para que na futura instalação eles pudessem montar os painéis facilmente, nem precisassem preparar ferramentas especiais para cortar e processar os painéis e ferramentas locais, e algumas ferramentas não são encontradas, o que atrasará muito tempo e custará muito dinheiro extra.
Assim, para que todas as peças que todos processamos em nossa fábrica tenham comprimento adequado e também fáceis de enviar em contêineres, na maior parte. Também desmontamos em pedaços pequenos e em todas as partes com números em ordem, para que possam saber como para montá-lo e evitar ferimentos e perder as peças.
Antes do envio, também enviamos vários layouts para o cliente verificar o design e o layout.
Portanto, isso poderia evitar os erros encontrados após a construção. Você pode ver nos desenhos, todas as peças com número especial com os mesmos produtos na realidade, para que possam encontrar as peças conforme nosso desenho e saber a ordem de instalação que são o primeiro passo e o próximo .
No final, ficamos felizes em finalizar o pedido juntos. E os produtos também terminaram a embalagem. Quando o cliente recebeu os produtos, eles ficaram muito felizes e gratos.
Porque nestes meses é muito difícil para o povo chinês ir à Rússia para instalação. Nosso serviço resolveu esse problema de forma absoluta, eles também economizaram pelo menos 50% do custo que processam e empregam a equipe local de decoração e construção.

